Porzione di trifamiliare in vendita

Collegno, Via G. Verdi - Santa Maria
€ 255.000
4 locali 4 locali
115 Mq 115 Mq
2 bagni 2 bagni

Porzione di trifamiliare in vendita

Collegno, Via G. Verdi - Santa Maria

Descrizione annuncio

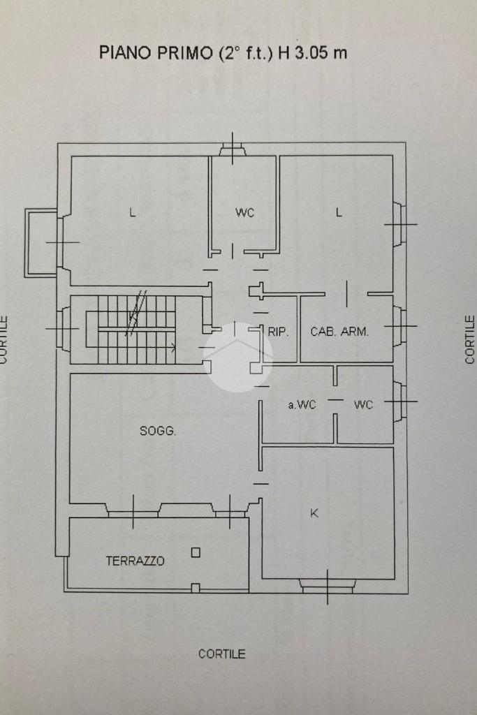
Nel cuore della località di Santa Maria, nel comune di Collegno, porzione di trifamiliare senza spese condominiali e con riscaldamento autonomo.

L'immobile, di 115 mq, si trova al piano primo senza ascensore. La disposizione interna comprende quattro locali ben distribuiti, offrendo ampi spazi per ogni esigenza abitativa.

Soggiorno ampio con affaccio sul terrazzo esposto a sud, cucina abitabile, due ampie camere da letto, di cui una con cabina armadio e l'altra con balcone e due bagni finestrati, l'immobile dispone di un pratico ripostiglio interno; non è presente la cantina.

Infissi in legno/doppio vetro e zanzariere.

L'immobile è dotato di aria condizionata, assicurando un ambiente confortevole in ogni stagione. Questa soluzione abitativa rappresenta un'opportunità interessante per chi cerca spazio e funzionalità in una zona tranquilla e ben servita.

Caldaia sostituita nel 2022.

Mostra tutto

Nelle vicinanze

Trasporto pubblico Trasporto pubblico
Fermi
Fermi
1,9 Km
Paradiso
Paradiso
2,7 Km
stazione di Collegno
stazione di Collegno
690 m
stazione di Grugliasco
stazione di Grugliasco
2,6 Km
Donizetti
Donizetti
150 m
Ricariche auto elettriche Ricariche auto elettriche
Collegno Corso Francia | EnelX
630 m
Collegno Pastrengo | ENELX
1,1 Km
RIVOLI Via Pavia | ENELX FAST
1,3 Km
COLLEGNO PASTRENGO 34/b | ENELX
1,4 Km
Tris Car Di Mina Giuseppe | EnelX
1,8 Km
Scuole Scuole
Scuola dell'infanzia G. Capuozzo
510 m
Scuole
540 m
Scuola Elementare "Don Milani"
560 m
Scuola elementare Guglielmo Marconi
980 m
Dante Di Nanni
1,1 Km
Farmacia Farmacia
Farmacia
160 m
Farmacia Peirano
890 m
Vecco
1,5 Km
Parafarmacia Conad
1,5 Km
Farmacia Comunale 9
1,6 Km
Ospedali Ospedali
Guardia Medica
1,5 Km
IRM
2,5 Km
Clinica della Memoria "Giovanni Paolo II"
3,0 Km
Supermercati Supermercati
Mercatò
800 m
Aldi
1,3 Km
GS
1,4 Km
Conad
1,5 Km
Ro Market
1,6 Km
Negozi Negozi
Negozi
1,3 Km
Carrefour Express
1,4 Km
Panetteria
1,6 Km
latteria - milk and food
1,7 Km
Alimentari
2,1 Km
Bar Bar
Bar Pa.Fi.
390 m
Incontro
450 m
Bar dell'amicizia
520 m
IL Capolinea
520 m
Bar
1,1 Km
Ristoranti Ristoranti
La Casa di Bacco
110 m
Jonica
310 m
Ristoranti
670 m
zhōng cān
950 m
Sunphilao
1,0 Km
Mostra tutto

Caratteristiche

Rif.:
61199128
Piano:
1 di 2 (Piano basso)
Balconi:
1
Terrazzi:
1
Camere da letto:
2
Arredamento:
Assente
Mostra tutto
Prezzo Prezzo
€ 255.000
Rata mutuo Rata mutuo
€ 1.208 / mese
Spese annue Spese annue
€ 0
Proponi il tuo prezzoProponi il tuo prezzo

Classe Energetica

D
D
D
D
D
D
D
D
D
EP globale non rinnovabile:
162.48 kW h/m² anno
EP invernale del fabbricato:
EP estiva del fabbricato:
Anno di costruzione:
1965
Riscaldamento:
Autonomo
Tipo impianto:
A radiatori
Tipo alimentazione:
Metano

Ti interessa visionare l'immobile?

Fissa un appuntamento  Fissa un appuntamento

Richiedi informazioni

Clicca su Leggi per aprire l'informativa
* Questi campi sono obbligatori

Calcola il tuo mutuo

Semplice e senza impegno
Anticipo

( % )
Mutuo

( % )

pochi semplici passi

inserisci i tuoi dati
Questionario completato
Grazie per aver richiesto un appuntamento senza impegno con un nostro Consulente del Credito e Assicurativo.

Hai inserito correttamente tutti i dati necessari e a breve riceverai una e-mail con un link da convalidare per inviare i tuoi dati.
Affiliato
Immobiliare Leumann Sas
Via Lamarmora, 43/A 10093 Collegno (TO)

Il nostro staff


  • Antonietta Lucia Cannella
    Coordinatrice

  • Salvatore Pistone
    Affiliato

  • Marta Francisca Vrabie
    Collaboratrice
Via Lamarmora, 43/A 10093 Collegno (TO)
Zona: Collegno-Leumann-Terracorta
Mostra su mappa
Affiliato
Immobiliare Leumann Sas
Via Lamarmora, 43/A 10093 Collegno (TO)

2026 Tecnocasa Franchising S.p.A. - P. IVA 08365160152 - Via Monte Bianco 60/A 20089 Rozzano (MI). Ogni agenzia ha un proprio titolare ed è autonoma. Privacy policy | Policy utilizzo | Cookie policy